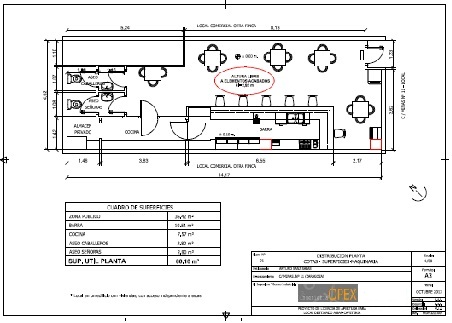
Certificado de revisión de instalación de baja tensión, adecuación a normativa actual de cuadro eléctrico, certificado de revisión periodica de instalación de protección contraincendios, instalación nueva de extintores de sala y cuadro eléctrico, planos de distribución de superficies, instalación de incendios y cálculo de densidad de ocupación.