Proyecto de rehabilitación de inmueble en edificio en calle Antonio Rocasolano, realización de nueva bovedilla y solera,  nuevo diseño de interiores e  instalaciones,  mejor aprovechamiento de los espacios, diseño de iluminación, reforma de cocina, baños, renovación de instalaciones y  carpinterías,  saneamiento de paredes de ladrillo y rollizos de madera

Imágenes final de obra amueblado

Imágenes final de obra

Imágenes del transcurso de la obra

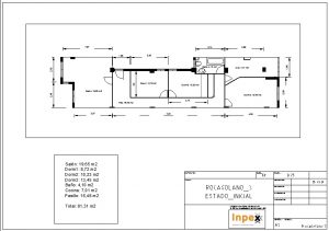
Imágenes del estado inicial de la obra