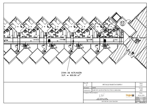
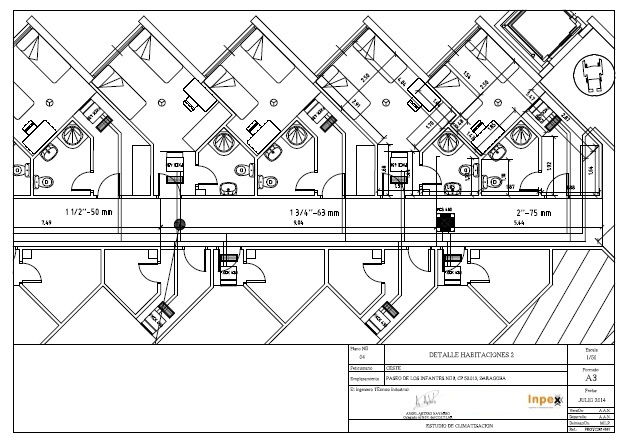
Instalación de climatización en la ampliación de la residencia de Ceste, sistema agua-aire formado por una enfriadora de 61 kw. montada sobre una bancada en el tejado, 22 fan-coils para cada una de las habitaciones y 3 cassettes para zonas comunes, distribución de agua realizada en polietileno reticulado multicapa, aislado según normativa vigente.