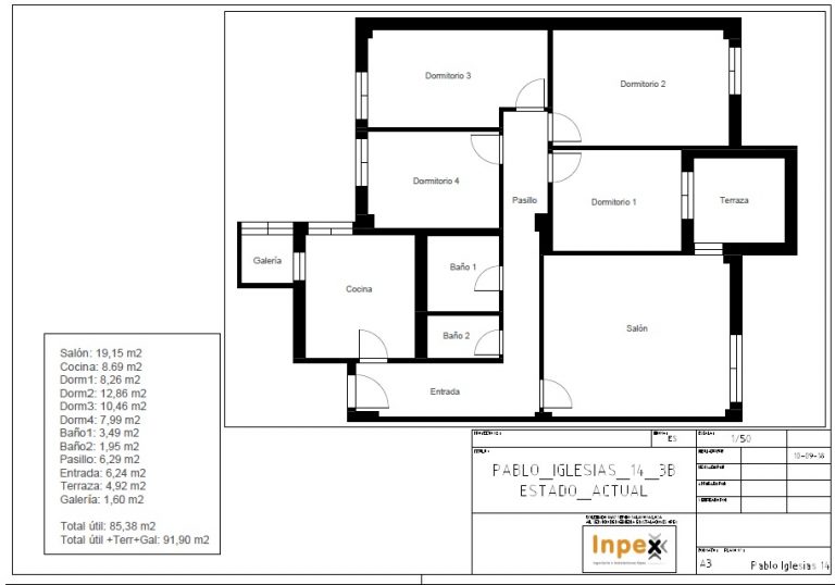
Proyecto de reforma de vivienda en calle Pablo Iglesias 14 de 92m2, diseño de interiores e iluminación, diseño y renovación de instalaciones, trasdosados con aislamiento de lana de roca, suelo laminado con foam acústico, renovación de cocina, baños y carpinterías.

Imágenes del final de obra.

Imágenes del transcurso de la obra

Imágenes del estado inicial de la obra

Conjunto de planos